.jpg)
574 Antler Drive, Mt Zion, IL
$215,000
Active
3 Beds
3 Baths
1,633 SqFt
0.20 Acres
2 Car Garage
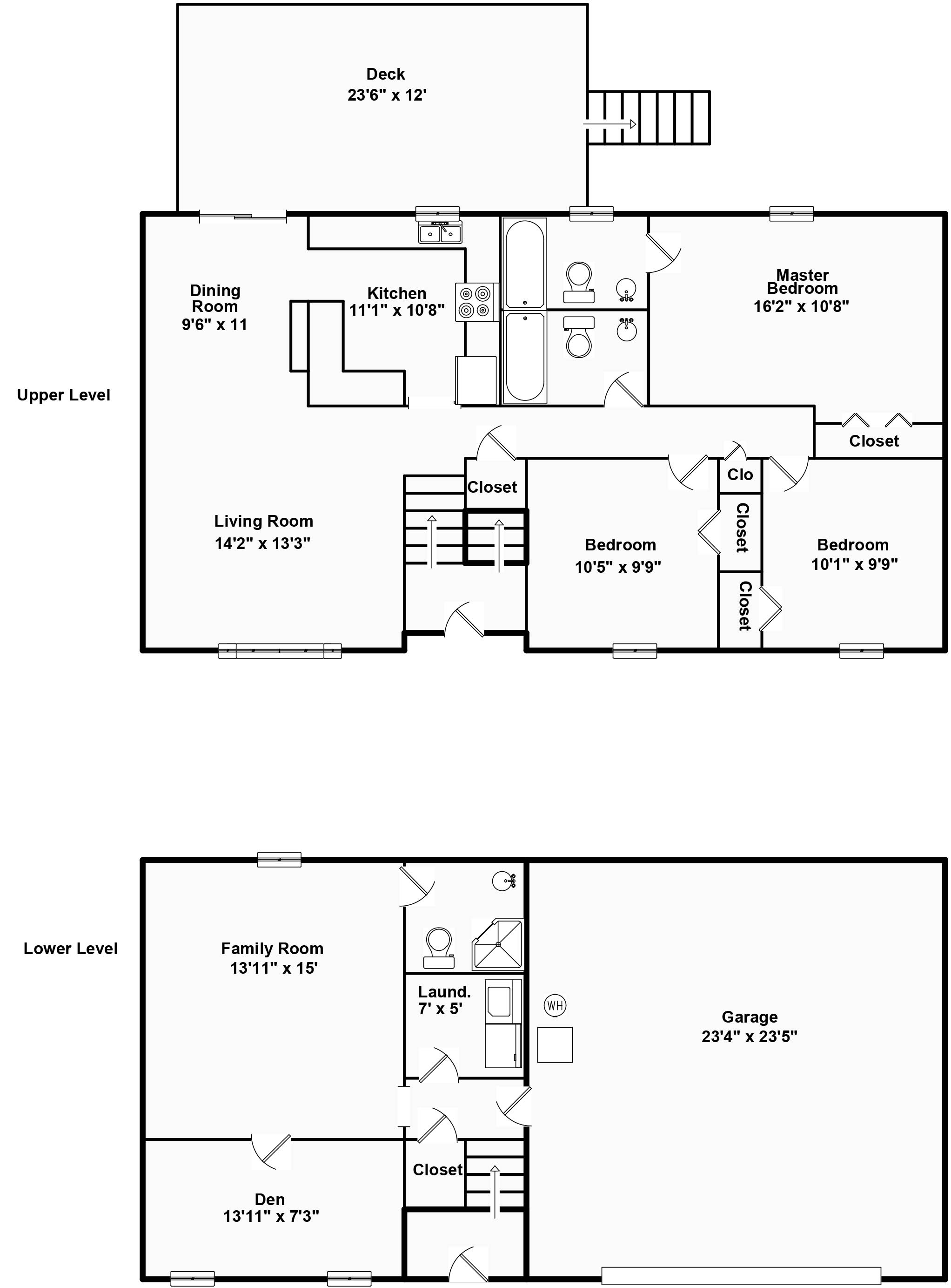
About 574 Antler Drive
This move-in ready home is tucked into a quiet neighborhood minutes from all Mt. Zion has to offer. The remodeled kitchen features soft-close cabinets, granite countertops, and newer SS appliances. (kitchen island included with matching granite countertops- not shown in photos). Throughout the upper level main areas is waterproof laminate floors and tilt-in replacement windows that pour in the natural light with East/West sun exposure. The dining room leads out to the freshly stained deck that offers an additional 280 sqft of outdoor living area perfect for convenient grilling off the kitchen. Below the deck is perfect for patio furniture for a private backyard oasis with a fully enclosed fenced yard. The master bedroom accommodates a King size bed and has it’s own on-suite bathroom. The lower level has a den/office that could be utilized as a 4th bedroom with egress windows (no closets). You’ll love having an entirely separate hangout room in the lower level with the 3rd bathroom for convenience. The garage is 23 ft deep to fit oversized vehicles comfortably and the additional shed in the backyard adds even more storage. Home has a new Roof and painted exterior in 2024. Fiber Internet is already connected.
Facts & Features
MLS® # | 6255292 |
---|---|
Price | $215,000 |
Cost Per Square Foot | $132 |
Bedrooms | 3 |
Bathrooms | 3.00 |
Full Baths | 3 |
Total Finished Square Feet | 1,633 |
Total Finished Above Grade | 1,133 |
Main | 1,133 |
Lower | 500 |
Acres | 0.20 |
Year Built | 1979 |
Type | Single Family |
Sub-Type | Single Family Residence |
Style | Bi-Level |
Status | Active |
Taxes | $3,367 |
Tax Year | 2024 |
Community Information
Address | 574 Antler Drive |
---|---|
City | Mt Zion |
County | Macon |
State | IL |
Zip Code | 62549 |
Amenities
Parking | Attached, Garage |
---|---|
# of Garage Spaces | 2 |
Is Waterfront | No |
Has Pool | No |
Interior
Appliances | Dishwasher, Disposal, Gas Water Heater, Microwave, Range, Refrigerator |
---|---|
Heating | Gas |
Cooling | Central Air |
Fireplace | No |
# of Stories | 2 |
Stories | Two |
Exterior
Exterior Features | Deck, Fence |
---|---|
Windows | Replacement Windows |
Roof | Asphalt |
Construction | Aluminum Siding, Brick |
Foundation | Other |
School Information
District | Mt Zion Dist 3 |
---|
Additional Information
Date Listed | October 16th, 2025 |
---|---|
Days on Market | 5 |
Zoning | R-3 |
Listing Details
Agent | Aimee Dial |
---|---|
Office | Brinkoetter REALTORS® |