9150 N Route 51, Decatur, IL
$219,000
Active
4 Beds
2½ Baths
1,856 SqFt
1.58 Acres
2 Car Garage
About 9150 N Route 51
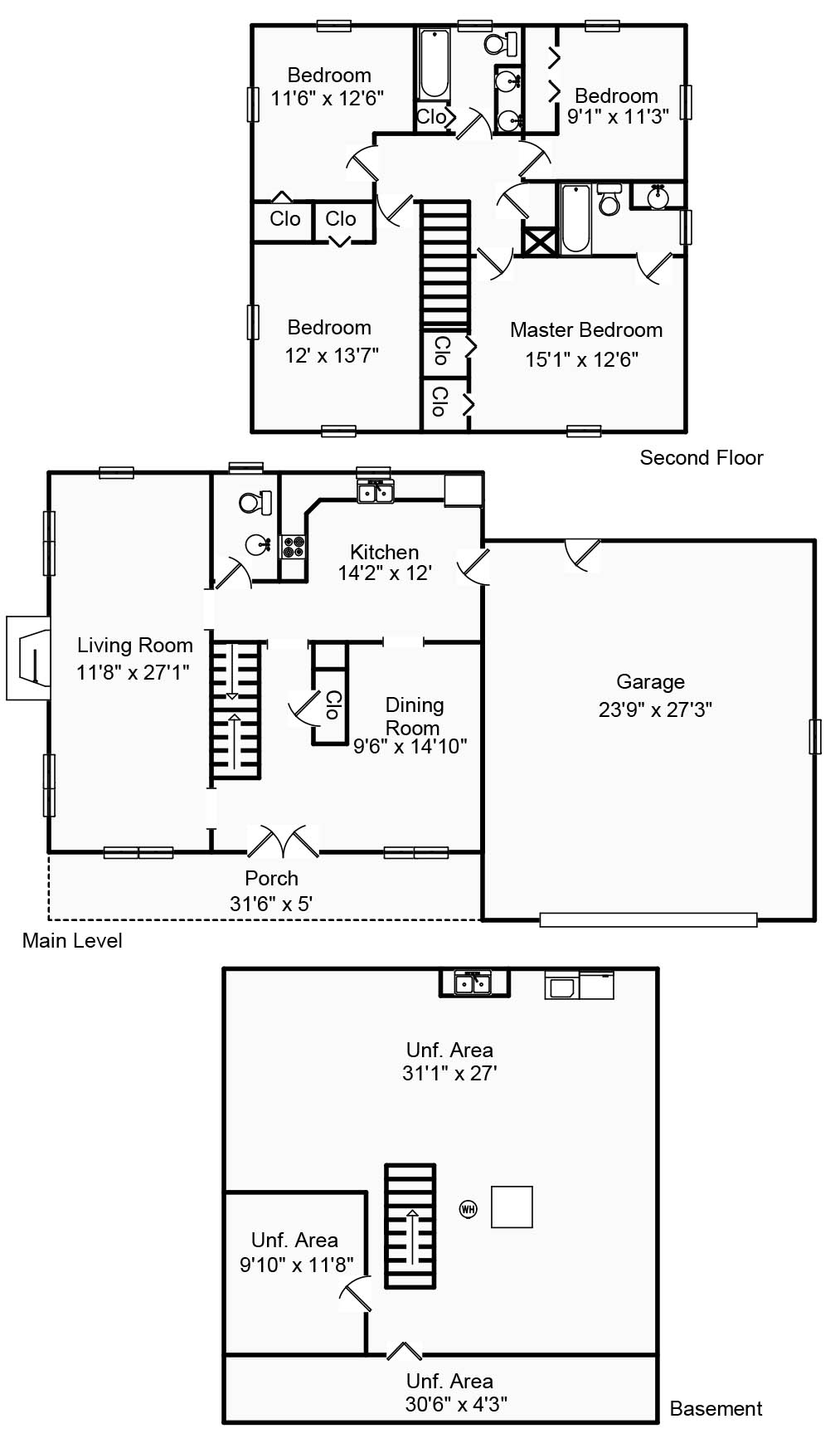
Don't miss this one. MAROA-FORSYTH SCHOOLS. Located just 1-1/2 miles north of Forsyth, this rural location near city amenities offers it all. 4/2.5 traditional two story home custom built by the current owner with many premium features: shake-look 3-layer roof with lifetime warranty (per manufacturer info), top-of-the-line water conditioning system by Kinetico, Pella windows and doors throughout, solid concrete storm shelter-root cellar, Master Gardener-developed grounds with large organic garden space and over 45 varieties of unique trees, lightning rods, safe room with 3-1/2" thick solid walls for personal safety and storing valuables, underground electric service, natural gas service (unusual in rural areas and much less expensive than heating with LP), 8' high garage doors allow for taller vehicles and the list goes on. Make this solidly-built home your own with some cosmetic updates that fit your lifestyle. Selling as-is, but inspections will be allowed. Chair lift does not stay.
Facts & Features
| MLS® # | 6255314 |
|---|---|
| Price | $219,000 |
| Cost Per Square Foot | $118 |
| Bedrooms | 4 |
| Bathrooms | 3.00 |
| Full Baths | 2 |
| Half Baths | 1 |
| Total Finished Square Feet | 1,856 |
| Total Finished Above Grade | 1,856 |
| Main | 896 |
| Upper 1 | 960 |
| Basement Total | 1,056 |
| Acres | 1.58 |
| Year Built | 1972 |
| Type | Single Family |
| Sub-Type | Single Family Residence |
| Style | Traditional |
| Status | Active |
| Taxes | $1,380 |
| Tax Year | 2024 |
Community Information
| Address | 9150 N Route 51 |
|---|---|
| City | Decatur |
| County | Macon |
| State | IL |
| Zip Code | 62526 |
Amenities
| Parking | Attached, Garage |
|---|---|
| # of Garage Spaces | 2 |
| Is Waterfront | No |
| Has Pool | No |
Interior
| Appliances | Dishwasher, Gas Water Heater, Water Purifier |
|---|---|
| Heating | Gas |
| Cooling | Central Air |
| Has Basement | Yes |
| Basement | Unfinished, Full |
| Fireplace | Yes |
| # of Fireplaces | 1 |
| Fireplaces | Wood Burning |
| # of Stories | 2 |
| Stories | Two |
Exterior
| Roof | Asphalt |
|---|---|
| Construction | Vinyl Siding |
| Foundation | Basement |
School Information
| District | Maroa Forsyth Dist 2 |
|---|---|
| Elementary | Maroa-Forsyth |
| Middle | Maroa-Forsyth |
| High | Maroa-Forsyth |
Additional Information
| Date Listed | October 1st, 2025 |
|---|---|
| Days on Market | 23 |
| Zoning | AGR |
Listing Details
| Agent | John Sellers |
|---|---|
| Office | Brinkoetter REALTORS® |