Loading floorplan...
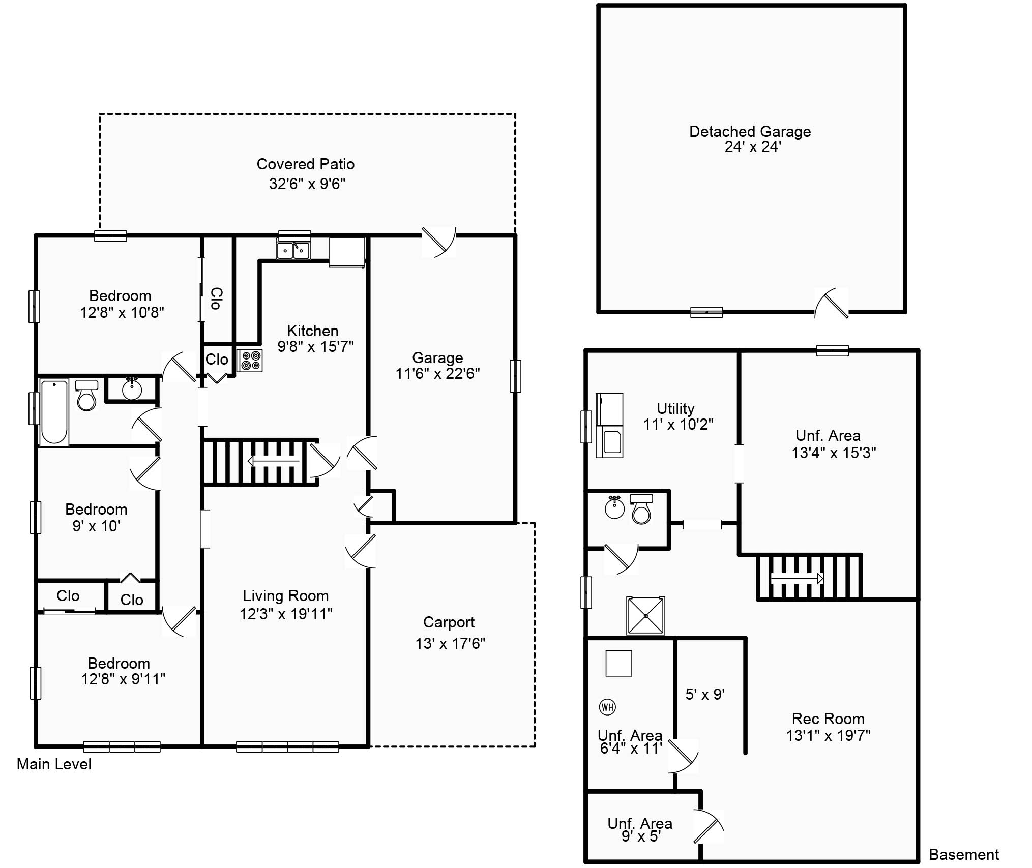
2273 N Fairview Avenue, Decatur, IL Floorplan
  • 1024w

2273 N Fairview Avenue, Decatur, IL

$87,500

Active

3 Beds

1 Bath

1,712 SqFt

0.23 Acres

1 Car Garage

About 2273 N Fairview Avenue

Home was just appraised for $90,000 on 6/19/25 so it's priced accordingly because it needs some TLC! Some new carpet and fresh paint and it will make somebody a great home! Beautiful oak cabinets in the kitchen, 3 bedrooms and 1 1/2 baths with a full basement, 1 car attached garage with a carport and a 2 car detached garage, great for woodworking, mechanical shop or a man cave, also has a fenced in yard! Only one block away from a neighborhood park. Home has a second lot, that parcel #is 04-12-04-406-007

Facts & Features

MLS® # 6255418
Price $87,500
Cost Per Square Foot $51
Bedrooms 3
Bathrooms 1.00
Full Baths 1
Total Finished Square Feet 1,712
Total Finished Above Grade 1,045
Main 1,045
Basement Total 1,040
Basement Finished 667
Basement Unfinished 373
Acres 0.23
Year Built 1958
Type Single Family
Sub-Type Single Family Residence
Style Ranch
Status Active
Taxes $863
Tax Year 2024

Community Information

Address 2273 N Fairview Avenue
Subdivision Lc Waltens Add
City Decatur
County Macon
State IL
Zip Code 62526

Amenities

Parking Attached, Detached, Garage, Carport
# of Garage Spaces 1
Is Waterfront No
Has Pool No

Interior

Appliances Dryer, Electric Water Heater, Oven, Range, Refrigerator, Washer
Heating Forced Air, Gas
Cooling Central Air
Has Basement Yes
Basement Unfinished, Full
Fireplace No
# of Stories 1
Stories One

Exterior

Exterior Features Fence, Workshop
Windows Replacement Windows
Roof Asphalt
Construction Aluminum Siding
Foundation Basement

School Information

District Decatur Dist 61

Additional Information

Date Listed October 3rd, 2025
Days on Market 20
Zoning R-1

Listing Details

AgentDina Durbin
OfficeBrinkoetter REALTORS®

Listing Map

Request a Showing

Provide a valid email address.
When would you like to view this property?