.jpg)
4499 Lawson Drive, Decatur, IL
$197,500
Pending
3 Beds
2 Baths
1,960 SqFt
0.16 Acres
3 Car Garage
About 4499 Lawson Drive
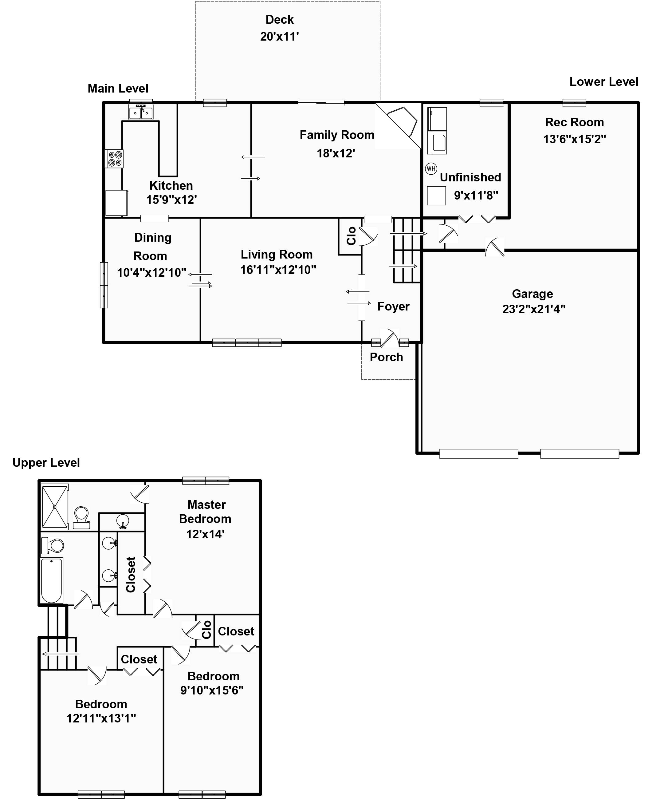
Move in Condition!!!! This long time owner has completed the work that most new homeowners have to do once they own it. The front of the home has brand new attractive vinyl siding. The rest of the exterior has been freshly painted. New roof installed in 2024. All interior doors have been replaced with 6 panel doors. You will love the replacement windows that tilt-in for easy cleaning. The main floor living room and family room have newly installed recessed lighting. Updated kitchen and baths. Wide plank wood laminate flooring throughout most of home. Room for everyone with a formal living room, plus a main floor family room with gas fireplace that has sliders to a deck and fenced back yard. The lower level Bonus Room could easily be an office or a 4th bedroom. A pleasure to see and show.
Facts & Features
MLS® # | 6255493 |
---|---|
Price | $197,500 |
Cost Per Square Foot | $101 |
Bedrooms | 3 |
Bathrooms | 2.00 |
Full Baths | 2 |
Total Finished Square Feet | 1,960 |
Total Finished Above Grade | 1,703 |
Main | 897 |
Upper 1 | 806 |
Lower | 257 |
Acres | 0.16 |
Year Built | 1975 |
Type | Single Family |
Sub-Type | Single Family Residence |
Style | Tri-Level |
Status | Pending |
Taxes | $4,990 |
Tax Year | 2024 |
Community Information
Address | 4499 Lawson Drive |
---|---|
Subdivision | Shadow Lane 4th Add |
City | Decatur |
County | Macon |
State | IL |
Zip Code | 62526 |
Amenities
Parking | Attached, Garage |
---|---|
# of Garage Spaces | 3 |
Is Waterfront | No |
Has Pool | No |
Interior
Appliances | Dishwasher, Gas Water Heater, Oven, Range, Refrigerator, Disposal, Range Hood |
---|---|
Heating | Forced Air, Gas |
Cooling | Central Air |
Basement | Crawl Space, Daylight |
Fireplace | Yes |
# of Fireplaces | 1 |
# of Stories | 3 |
Stories | Multi/Split, Three Or More |
Exterior
Lot Dimensions | 70 x 100 |
---|---|
Roof | Asphalt |
Construction | Vinyl Siding, Wood Siding |
Foundation | Crawlspace, Slab |
School Information
District | Decatur Dist 61 |
---|---|
Elementary | Parsons |
Middle | Stephen Decatur |
High | Macarthur |
Additional Information
Date Listed | October 9th, 2025 |
---|---|
Days on Market | 13 |
Zoning | RES |
Listing Details
Agent | Joseph Doolin |
---|---|
Office | Brinkoetter REALTORS® |