.jpg)
411 Woodhill Drive, Decatur, IL
$239,900
Active
4 Beds
2½ Baths
2,941 SqFt
0.26 Acres
2 Car Garage
About 411 Woodhill Drive
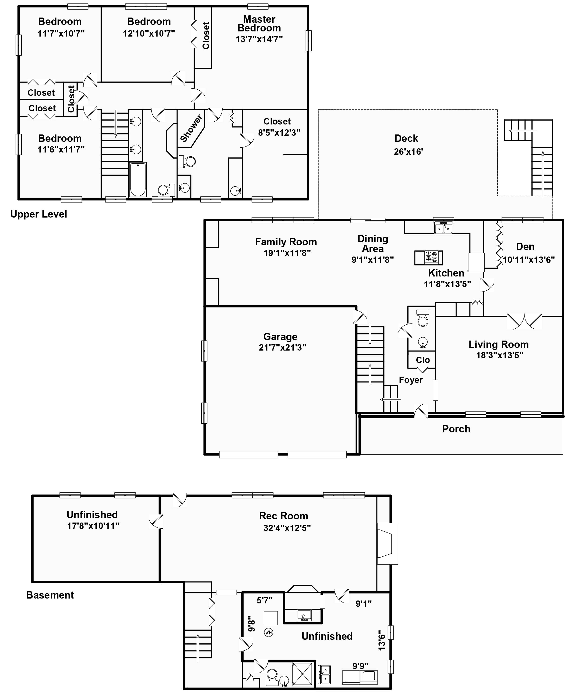
Welcome to this inviting 4 bedroom, two-story home with a large wooded backyard in the sought-after South Shores area. The moment you step onto the cozy front porch and into the foyer, you will feel the love that fills this home. The formal living room boasts refinished hardwood floors leading into a beautiful formal dining room or home office with a built-in hutch and french doors. The kitchen has a center island with tile floors, and flows into an eating area and family room for open-concept living. Hardwood flooring has been exposed and refinished on the stairs and throughout the upper level. There are 4 bedrooms upstairs, including the primary bedroom with spacious en-suite and walk-in closet. The walkout basement has plenty of light with several windows and a door to the outdoor patio, and also has newer vinyl plank flooring and a cozy fireplace. A fifth bedroom could also be easily created if needed. Enjoy the backyard from the deck or patio with plenty of trees that give privacy. Dont' miss! (sqft approximate until professionally measured)
Facts & Features
MLS® # | 6255528 |
---|---|
Price | $239,900 |
Cost Per Square Foot | $82 |
Bedrooms | 4 |
Bathrooms | 3.00 |
Full Baths | 2 |
Half Baths | 1 |
Total Finished Square Feet | 2,941 |
Total Finished Above Grade | 2,291 |
Main | 1,115 |
Upper 1 | 1,176 |
Basement Total | 1,116 |
Basement Finished | 650 |
Basement Unfinished | 466 |
Acres | 0.26 |
Year Built | 1964 |
Type | Single Family |
Sub-Type | Single Family Residence |
Style | Traditional |
Status | Active |
Taxes | $5,238 |
Tax Year | 2024 |
Community Information
Address | 411 Woodhill Drive |
---|---|
Subdivision | South Shores 20th Add |
City | Decatur |
County | Macon |
State | IL |
Zip Code | 62521 |
Amenities
Parking | Attached, Garage |
---|---|
# of Garage Spaces | 2 |
Is Waterfront | No |
Has Pool | No |
Interior
Appliances | Dishwasher, Refrigerator, Gas Water Heater, Microwave, Oven |
---|---|
Heating | Forced Air |
Cooling | Central Air |
Has Basement | Yes |
Basement | Unfinished, Finished, Full, Walk-Out Access |
Fireplace | No |
# of Stories | 2 |
Stories | Two |
Exterior
Roof | Asphalt |
---|---|
Construction | Vinyl Siding |
Foundation | Basement |
School Information
District | Decatur Dist 61 |
---|
Additional Information
Date Listed | October 10th, 2025 |
---|---|
Days on Market | 11 |
Zoning | RES |
Listing Details
Agent | Joseph Doolin |
---|---|
Office | Brinkoetter REALTORS® |