.jpg)
204 East B Street, LaPlace, IL
$119,900
Active
2 Beds
1 Bath
833 SqFt
0.41 Acres
3 Car Garage
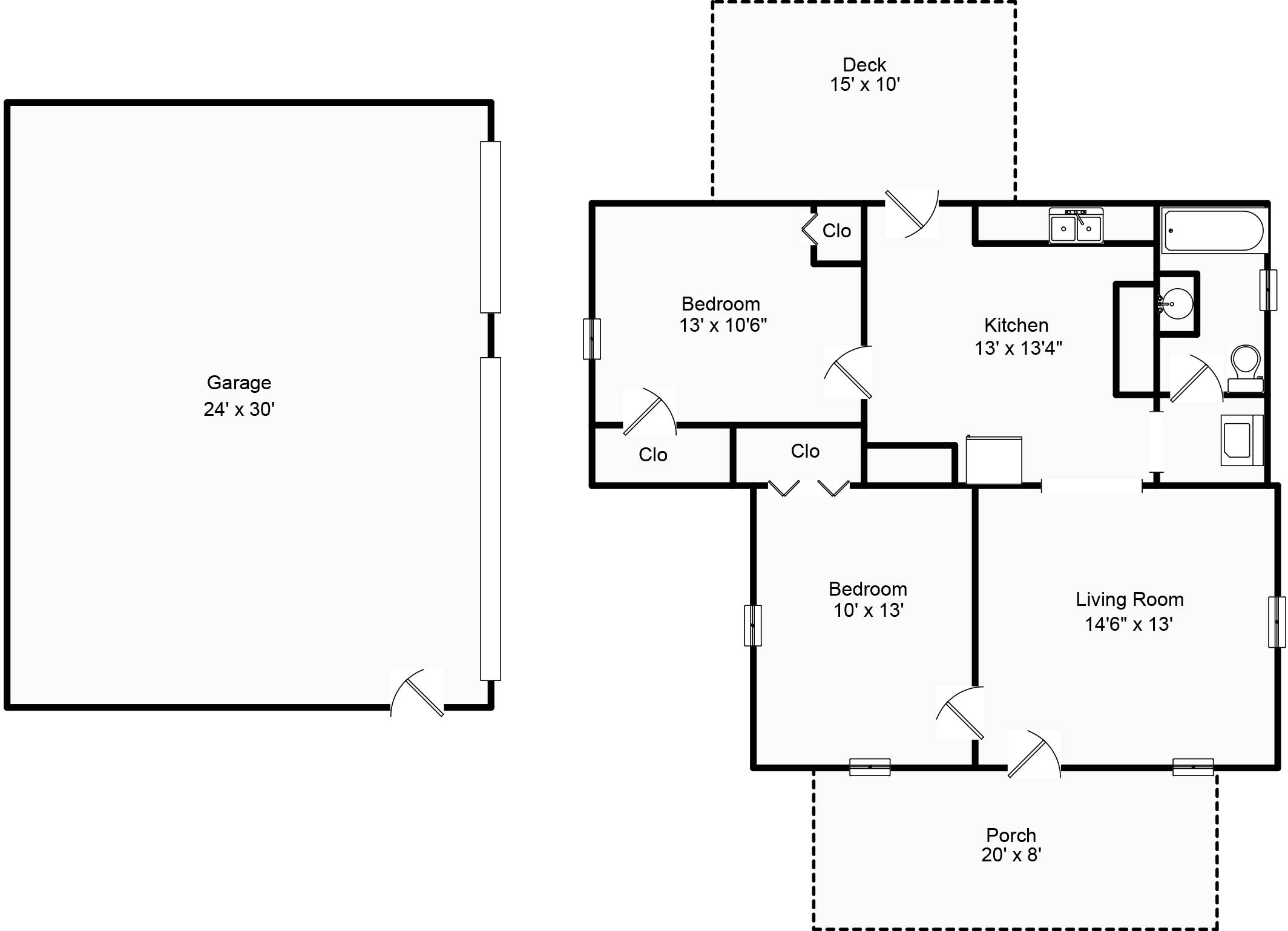
About 204 East B Street
Awesome country living!!! Super cute 2 bedroom home!! Come sit on the covered front porch and enjoy the shade from the large trees! Or sit out back and relax or entertain on the large deck! Lots of updates in this home!! Brand new kitchen cabinets and countertops. Home has newer floors and and updated bathroom. Brand new washer and dryer stay! Paritally fenced back yard (swingset stays!) Large 3 car detached garage! Great corner lot for easy access to garage! Nothing to do but move in!
Facts & Features
MLS® # | 6255608 |
---|---|
Price | $119,900 |
Cost Per Square Foot | $144 |
Bedrooms | 2 |
Bathrooms | 1.00 |
Full Baths | 1 |
Total Finished Square Feet | 833 |
Total Finished Above Grade | 833 |
Main | 833 |
Acres | 0.41 |
Year Built | 1940 |
Type | Single Family |
Sub-Type | Single Family Residence |
Style | Bungalow |
Status | Active |
Taxes | $2,120 |
Tax Year | 2024 |
Community Information
Address | 204 East B Street |
---|---|
City | LaPlace |
County | Piatt |
State | IL |
Zip Code | 61936 |
Amenities
Parking | Garage, Detached |
---|---|
# of Garage Spaces | 3 |
Is Waterfront | No |
Has Pool | No |
Interior
Appliances | Dryer, Gas Water Heater, Range, Refrigerator, Washer |
---|---|
Heating | Forced Air, Gas |
Cooling | Central Air |
Basement | Crawl Space |
Fireplace | No |
# of Stories | 1 |
Stories | One |
Exterior
Exterior Features | Fence, Shed, Deck |
---|---|
Roof | Asphalt, Shingle |
Construction | Vinyl Siding |
Foundation | Crawlspace |
School Information
District | Cerro Gordo Dist 100 |
---|
Additional Information
Date Listed | October 15th, 2025 |
---|---|
Days on Market | 6 |
Zoning | RES |
Listing Details
Agent | Kelli Kerr |
---|---|
Office | Brinkoetter REALTORS® |